Dachausbau P1
Villa Beer
Hotel Kristberg
Bauernhaus S1
Hotel Petersboden
Bauernhaus P1
Weingut Bründlmayer
Hotel Goldener Berg
Haus im Salzkammergut
Hotel Hohe Welt
Bauernhaus H1
Hotel Moerwald
Wohnbau Kaasgraben
Bauernhaus M1
Werkhalle ip-company
Konferenzhotel Stollhof
Dachausbau B2
Dachausbau H2
Dachausbau C1
Haus S2
Markus-Sittikus-Straße
Dachausbau A1
Haus H3
Möbelhaus Reseda
Haus C1
Bürogebäude ip-company
Haus B1
Dachausbau P1
Pool S2
Kleingartenhaus J1
Kleingartenhaus H1
Galerie Ruzicska
Showroom Stockinger
Showroom Brühl
Hotel Radisson Salzburg
Haus R1a
Atelier FG
Wintergarten S1
Altstadthaus P1
Fotostudio Kaindl-Hönig
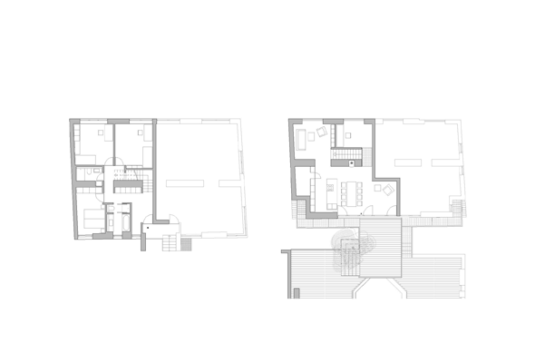
Titel Dachausbau P1
Auftraggeber Erwin Berghammer, Liegenschaftsverwaltung GmbH
Fertigstellung 11/2005
Fläche 147 m² + 170 m² Terrasse
Beschreibung Wien, Große Pfarrgasse. Beim Innenausbau des zweigeschossigen Dachausbaus schafft ein weiß geölter Eichenboden in allen Wohnräumen die Gemütlichkeit in einer minimalistischen Umgebung, Schieferböden markieren viel genutzte Gehwege, die durch bewusst eingesetzte Lichtquellen akzentuiert werden.
Projektleitung Christian Prasser
Download A968 dachausbau P1_web
Projektdaten Dachausbau P1 1 2 3 4 5 6
Titel Dachausbau P1
Auftraggeber Erwin Berghammer, Liegenschaftsverwaltung GmbH
Fertigstellung 11/2005
Fläche 147 m² + 170 m² Terrasse
Beschreibung Wien, Große Pfarrgasse. Beim Innenausbau des zweigeschossigen Dachausbaus schafft ein weiß geölter Eichenboden in allen Wohnräumen die Gemütlichkeit in einer minimalistischen Umgebung, Schieferböden markieren viel genutzte Gehwege, die durch bewusst eingesetzte Lichtquellen akzentuiert werden.
Projektleitung Christian Prasser
Download A968 dachausbau P1_web